Kraków, Prądnik Biały, Górka Narodowa
Lokal na sprzedaż
2 490 000 zł
Poznaj doradcę: Stanisław Godłowski!
Chętnie Ci pomoże i odpowie na dodatkowe pytania!
Stanisław Godłowski
Twój doradca
Budynek biurowo - usługowy na Prądniku Białym
Budynek biurowo-usługowy na sprzedaż – Prądnik Biały, Kraków
Do sprzedaży budynek biurowo-usługowy o całkowitej powierzchni ok. 500 m² (użytkowej ok. 300 m²), położony na działce 6,97 ara w atrakcyjnej lokalizacji na Prądniku Białym, w pobliżu wjazdu na obwodnicę północną Krakowa.
Budynek oddany do użytkowania w 2002 roku, ostatnia renowacja przeprowadzona w 2013 roku. Obecnie wymaga odświeżenia, co pozwala na dowolną aranżację wnętrz pod własne potrzeby.
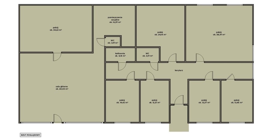
Układ pomieszczeń
Parter:
-
Sala główna – 60,03 m²
-
7 pokoi biurowych – 34,62 m², 24,14 m², 38,39 m², 14,42 m², 12,31 m², 13,37 m², 13,45 m²
-
Pomieszczenie socjalne – 16,39 m²
-
Kotłownia – 4,14 m²
-
Dwie toalety – 1,49 m² i 3,19 m²
Poddasze:
-
Open space do dowolnej adaptacji, wysokość do kalenicy 3 m, skosy.
Działka i parking
-
Powierzchnia działki: 6,97 ara, dodatkowo udział 1/3 w działce sąsiedniej o powierzchni 1,44 ara
-
Możliwość parkowania 15–20 samochodów, w tym wjazdu samochodów ciężarowych
-
Parking na całym terenie funkcjonuje w oparciu o nieformalną umowę z sąsiednim budynkiem
Wyposażenie i instalacje
-
Instalacje: wodna, gazowa, elektryczna, kanalizacyjna, alarmowa
-
Budynek przystosowany pod hurtownię i biura, możliwość dalszej adaptacji pod różne funkcje usługowe
Atuty nieruchomości
-
Doskonała lokalizacja z szybkim dojazdem do obwodnicy Krakowa
-
Duży teren pod parking i wjazd samochodów ciężarowych
-
Możliwość dowolnej adaptacji poddasza
-
Budynek w zabudowie bliźniaczej z własną działką i udziałem w działce sąsiedniej
Podsumowanie
Nieruchomość idealnie sprawdzi się jako siedziba firmy, biura z magazynem, hurtownia lub inna działalność usługowa wymagająca dużej powierzchni i dogodnego dojazdu.
Zapraszamy na prezentację!
To wyjątkowa okazja, aby obejrzeć nieruchomość, która łączy funkcjonalność, przestrzeń i świetną lokalizację. Skontaktuj się z nami i przekonaj się osobiście, jak dobrze może służyć Twojej firmie.
Szczegóły oferty



